whatsapp chat button
Instant Valuation
This property is not currently available. It may be sold or temporarily removed from the market.

Covelees Wall, London, E6 6WF

£3,595 pcm
  • Bedrooms: 6
  • Bathrooms: 3
  • Ref: 29777832
  • Council Tax Band: F
  • Postal Code: E6 6WF
  • Make Enquiry
  • Floorplan
  • View EPC

Description:

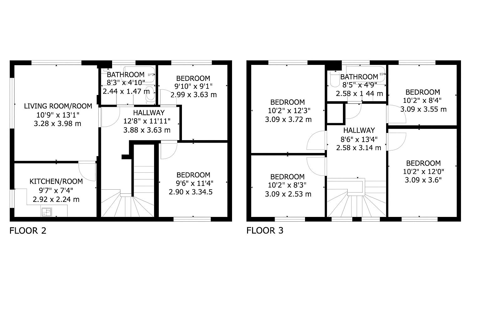
Spacious 6-Bedroom Detached House – Beckton, E6

This large detached home offers plenty of space for family living, just a short 3–4 minute walk from Beckton DLR Station.

The property includes:

• Six good-sized bedrooms

• Two bathrooms

• A generous reception room

• Modern kitchen

• 1 Driveway parking plus additional off-street parking

• Gas central heating

• Offered unfurnished

• Available for long-term let

Located in a quiet residential area, the house provides easy access to local shops, schools, and transport links. Perfect for families looking for a comfortable, well-connected home in Beckton.

To arrange a viewing or for further information, please contact Waterfronts Estate Agents: 020 7474 5757

Quick Search

Valuation Request

    Request A Valuation

    For more information and to discuss your individual requirements, please call 020 7474 5757 or or request a valuation.