whatsapp chat button
Instant Valuation
This property is not currently available. It may be sold or temporarily removed from the market.

Avenue Mansions, St Pauls Avenue, London, NW2 5UG

£2,700 pcm
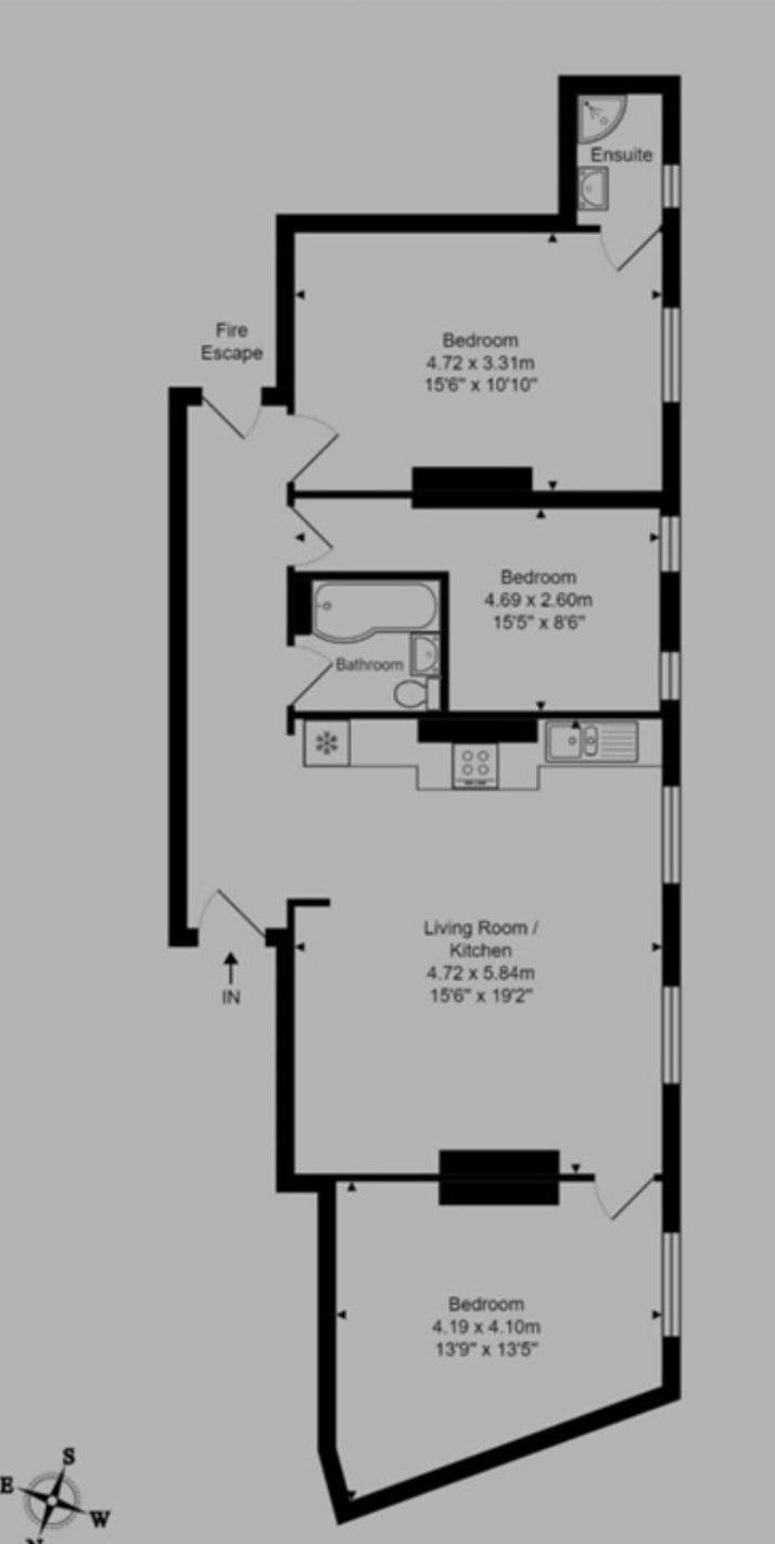
  • Bedrooms: 3
  • Bathrooms: 2
  • Ref: 29639358
  • Type: Apartment
  • Council Tax Band: C
  • Postal Code: NW2 5UG
  • Make Enquiry
  • Floorplan
  • View EPC

Description:

Spacious 3-Bedroom Apartment for Rent in Avenue Mansions, London NW2 – Classic Elegance Meets Modern Comfort

Discover refined London living with this beautifully presented 3-bedroom apartment for rent in Avenue Mansions, London NW2. Located in one of Cricklewood’s most desirable residential developments, this elegant home combines period charm with contemporary finishes, offering generous living space and excellent transport links.

Quick Search

Valuation Request

    Request A Valuation

    For more information and to discuss your individual requirements, please call 020 7474 5757 or or request a valuation.