whatsapp chat button
Instant Valuation
This property is not currently available. It may be sold or temporarily removed from the market.

Avenue Mansions, St Pauls Avenue, London, NW2 5UG

£2,995 pcm
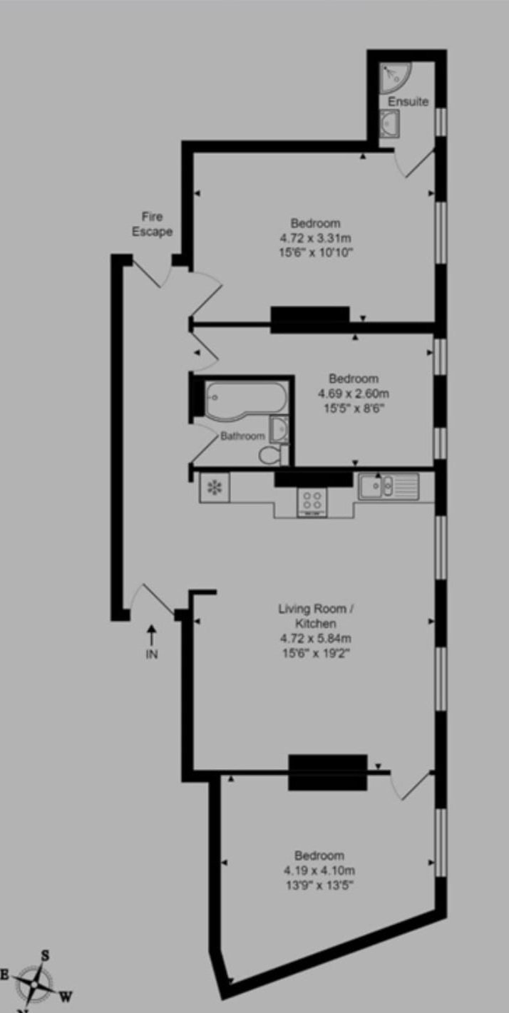
  • Bedrooms: 3
  • Bathrooms: 2
  • Ref: 29515028
  • Type: Apartment
  • Council Tax Band: C
  • Postal Code: NW2 5UG
  • Make Enquiry
  • Floorplan
  • View EPC

Property Features

  • Open-Plan Kitchen and Living Area
  • Close to Transport Links

Description:

Spacious 3-Bedroom Apartment for Rent in Avenue Mansions, NW2 London

Located on the 3rd floor of Avenue Mansions, NW2 London, this beautifully presented 3-bedroom apartment offers a perfect blend of modern comfort and classic charm. With a well-designed open-plan living and kitchen area, this property provides generous space ideal for families or professionals seeking stylish living in a prime London location.

Quick Search

Valuation Request

    Request A Valuation

    For more information and to discuss your individual requirements, please call 020 7474 5757 or or request a valuation.